Indietro
Aggiungere alla selezione

Villetta a schiera
Paderno Dugnano

  • Ref. 7959639
  • 130 m²
  • Trattativa riservata

VENDUTA A MAGGIO 2023

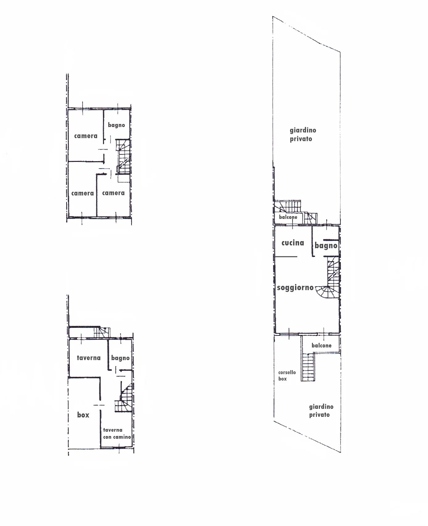
IMMOBILE VENDUTO. Paderno Dugnano, in zona semicentrale Peter Cimino Consulenze Immobiliari propone una villetta a schiera in ottime condizioni, libera subito! Trattasi di un acquisto in EDILIZIA PRIVATA il terreno è stato regolarmente riscattato e pagato con atto notarile del 2011. La soluzione immobiliare si sviluppa su due piani abitativi, oltre ad un piano seminterrato ed un piano solaio (sottotetto) ad uso ripostiglio e il tutto è cosi composto: al piano rialzato un ingresso, soggiorno, cucina abitabile ed un bagno; al piano primo tre camere ed un bagno; al piano sottotetto (ripostiglio); al piano interrato, cantina, taverna, bagno, ripostiglio. Annesso un box comunicante con la taverna, un giardino di proprietà ed un posto auto ad uso esclusivo.

Stampare l'annuncio

Sommario

  • Locali 4 locali
  • Superficie 130 m²
  • Riscaldamento Gas, Autonomo
  • Condizione Ottime condizioni/ristrutturato
  • Piano Piano terra

Prestazioni

  • Aria condizionata
  • Camino
  • Doppi vetri
  • Illuminazione esterna
  • Sistema di irrigazione
  • Allarme
  • Cancello elettrico

Prossimità

  • Centro città 200 metro

Cliccando su « Accetto », autorizzate l’utilizzo dei cookies per garantirvi una consultazione ottimale di questo sito.

Maggiori informazioni Accetto